Warsaw: +48 888 889 661
ul. Brylowska 2/3B
Kielce: +48 692 024 827
ul. Kozia 3a/1
en

Kielce, Baranówek, Kwarciana

64.23 m2 Rooms: 3 39 PLN/m2 2 500 PLN

Description of the ad

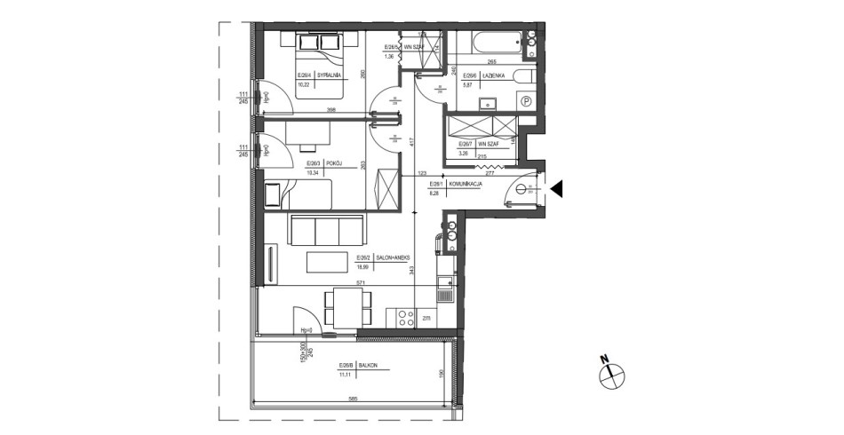
For rent: a 3-room apartment with a total area of 64.23 m², located on the third floor of an apartment building from 2016, on Kwarciana Street.

The apartment consists of:

  • a spacious living room with an area of 15.95 m²,

  • a kitchenette with an area of 10.78 m²,

  • a bedroom with an area of 9.89 m²,

  • a bedroom with an area of 12.85 m²,

  • a bathroom with WC with an area of 4.16 m²,

  • a technical room / laundry room / storage room with an area of 1.28 m²,

  • a hallway with an area of 9.32 m².

The apartment is dual-aspect, with north–south exposure.
From the living room there is access to a large balcony with an area of 7 m².

The apartment is located in a modern building with a view of green areas (Telegraf Hill), while at the same time being very well connected with the rest of the city. Nearby there are bus stops, shops, offices, a park, and a school.

The apartment is finished to a high standard, fully furnished and equipped with necessary household appliances, including a dryer, dishwasher, built-in microwave, oven, induction hob, built-in fridge, coffee machine, TV, vacuum cleaner, iron, and ironing board. The living room is equipped with air conditioning. Mosquito nets are installed in all windows.

The property is fenced. The apartment includes a parking space in the underground garage, available for an additional fee of 200 PLN.

Maintenance costs: rent 2,500 PLN + administrative fee approx. 750 PLN / 5 persons (includes advances for water and heating, maintenance of common areas) + electricity according to meter readings.
Security deposit: one month’s rent.

Occasional lease required.

No energy performance certificate has been prepared for the apartment

For more information in English please call: 888 889 441, e-mail: jacek.kotlarz@properco.pl

General information

  • Listing No
    PRP-MW-75807
  • Type
  • Location
    Kielce, Kwarciana
  • District
    Baranówek
  • Type of building
    apartments house
  • Total area [m2]
    64.23
  • Floor
    3floor
  • No of floors in the building
    4
  • Price:
    2 500 PLN
  • Price per sqm2
    39 PLN

Real estate

No of floors in the building
4
Type of apartment
Jednopoziomowe
Windows
PCV
Balcony
large
No of balconies
1
Usable area [m2]
64.23
Completion year
2016
Elevator
tak
Construction technology
concrete, brick
Condition of the property
high standard
Systems
Yesgood
Gas
no
Water
Heat - city
Access
asphalt
Heating
vir_listalng_co_z_sieci_miejskiej
Security doors
Yes
Cable TV
Yes
Location
Bilateral
Furnished
comprehensive

Rooms

Rooms
3
Height of the room
0
No of bathrooms
1
No of corridors
1
Pokoj
Area
15,95;12,85;9,89
Walls
painted
Floors
floor panels
Windows exposure
Pn, Pd
Kuchnia
Area
10,78
Type of the room
kitchen annex - part of living room
Type of kitchen
kitchenette connected with the dining room and the living room
Walls
glaze
Floors
gres
Windows exposure
Pn
Equipment
silverware, pots, Microwave, kitchen furniture to size, kitchen furniture, kitchen cabinet, induction hob, electric oven, dish-washer, chairs, Appliances, small equipment, stand-alone cabinets, table, vir_listalng_lodowkozamrazarka, vir_listalng_okap, vir_listalng_stala_zabudowa, wall-mounted cabinets
Lazienka
Area
4,16
Type of the room
along with the toilet
Number
1
ceramic tile
new type
Walls
glaze, painted
Floors
gres
Equipment
bath, cabinets, dryer, locker, mirror, vir_listalng_zlew, washing-machine
Przedpokoj
Area
9,32
Number
1
Walls
painted
Floors
gres
PROPERCO sp. z o.o. sp.k
Contact
Jacek Kotlarz +48 888 889 441 jacek.kotlarz@properco.pl

Listing No: PRP-MW-75807

Why us

Support in completing formalities
Support in completing formalities
Support in organising financing
Support in organising financing
Professional photo sessions
Professional photo sessions
Home staging
Home staging