Warsaw: +48 888 889 661
ul. Brylowska 2/3B
Kielce: +48 692 024 827
ul. Kozia 3a/1
en

Jędrzejów,

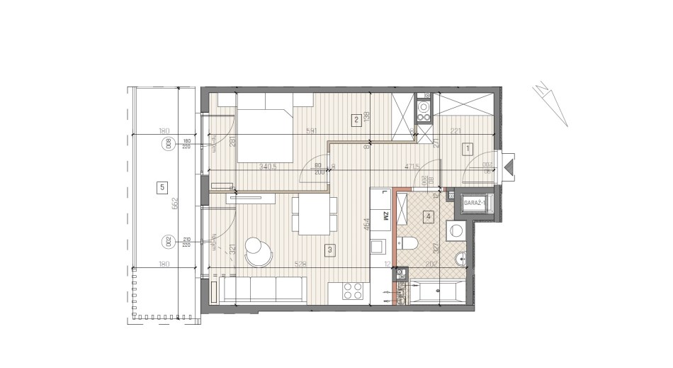
44.03 m2 Rooms: 2 9 999 PLN/m2 440 255 PLN

Description of the ad

For sale: a 2-room apartment with an area of 44.03 m2, located on the 2nd floor in a modern development in Jędrzejów. The apartment is in developer standard.

The apartment consists of:
– living room with kitchenette with an area of 19.24m2,
– bedroom with an area of 12.76m2,
– bathroom with an area of 5.70m2,
– hall with an area of 6.33m2,
– balcony with an area of 10.99m2.

Project completion date: Q3 2026.

The layout is functional, and the single-level arrangement together with elevator access increases user comfort. Heating from the building’s own gas boiler room.

There is a possibility to purchase:
– a parking space in the underground garage – PLN 48,000 (elevator access from garage level),
– a storage unit – PLN 4,000/m2.

Development
The complex includes 57 apartments in an apartment building with an integrated underground garage. The premises offer amenities such as: a gym, sauna, children’s playroom, DIY room, water treatment station, electric vehicle charging station, guest parking spaces and a restaurant.

Location
The estate is located near the City Park and the reservoir – surrounded by recreational areas and greenery, with convenient access to urban infrastructure: schools, services, transport (PKP/PKS stations, bus stops), shops and sports facilities.

>>The buyer is exempt from office service fees and PCC tax <<

Contact details for the agent: Magdalena Prokopoudi Tel: 888-889-594 E-mail: magdalena.prokopoudi@properco.pl

General information

  • Listing No
    PRP-MS-75733
  • Type
  • Location
    Jędrzejów
  • Type of building
    apartments house
  • Total area [m2]
    44.03
  • Floor
    2floor
  • No of floors in the building
    4
  • Price:
    440 255 PLN
  • Price per sqm2
    9 999 PLN

Real estate

No of floors in the building
4
Type of apartment
Jednopoziomowe
Windows
PCV
Balcony
large
No of balconies
1
Usable area [m2]
44.03
Completion year
2026
Elevator
tak
Condition of the property
Developers
Systems
Yesnew
Gas
yes
Water
yes - city
Access
asphalt
Heating
CO
Location
unilateral

Rooms

Rooms
2
Height of the room
0
No of bathrooms
1
Kuchnia
Type of kitchen
Kitchenette
Lazienka
Number
1
PROPERCO sp. z o.o. sp.k
Contact
Magdalena Prokopoudi +48 888 889 594 magdalena.prokopoudi@properco.pl

Listing No: PRP-MS-75733

Why us

Support in completing formalities
Support in completing formalities
Support in organising financing
Support in organising financing
Professional photo sessions
Professional photo sessions
Home staging
Home staging