Warsaw: +48 888 889 661
ul. Brylowska 2/3B
Kielce: +48 692 024 827
ul. Kozia 3a/1
en

Kielce, KSM, Aleja Solidarności

94.70 m2 Rooms: 5 10 000 PLN/m2 947 000 PLN

General information

  • Listing No
    PRP-MS-75605
  • Type
  • Location
    Kielce, Aleja Solidarności
  • District
    KSM
  • Type of building
    block
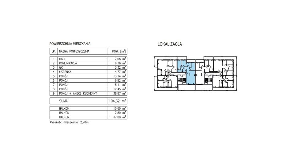
  • Total area [m2]
    94.70
  • Floor
    10 floor
  • No of floors in the building
    10
  • Price:
    947 000 PLN
  • Price per sqm2
    10 000 PLN

Real estate

No of floors in the building
10
Type of apartment
Jednopoziomowe
Windows
vir_listalng_pcv_3_komorowe
Balcony
large
No of balconies
3
Usable area [m2]
94.70
Completion year
2024
Elevator
tak
Construction technology
brick
Condition of the property
Developers
Systems
Yesnew
Gas
no
Water
Heat - network
Access
asphalt
Heating
City

Rooms

Rooms
5
Height of the room
0
PROPERCO sp. z o.o. sp.k
Contact
Jacek Kotlarz +48 888 889 441 jacek.kotlarz@properco.pl

Listing No: PRP-MS-75605

Why us

Support in completing formalities
Support in completing formalities
Support in organising financing
Support in organising financing
Professional photo sessions
Professional photo sessions
Home staging
Home staging